• 119 m2
  • 149 m2
  • 6 kamers

€ 600.000,- k.k.

Op een steenworp afstand van de prachtige Rietplas, in de geliefde wijk ‘Het Meer’, ligt deze royale en speelse split-level woning (label A) met een ruime zonnige tuin waar je heerlijk kunt...
Contact

Omschrijving

Op een steenworp afstand van de prachtige Rietplas, in de geliefde wijk ‘Het Meer’, ligt deze royale en speelse split-level woning (label A) met een ruime zonnige tuin waar je heerlijk kunt ontspannen. Een huis voor mensen die nét even iets anders zoeken dan standaard!

De woning is verrassend ingedeeld met de keuken, eetkamer en woonkamer op drie verschillende niveaus. Dat zorgt niet alleen voor een speels karakter, maar ook voor een heerlijk ruimtelijk gevoel. In de eetkamer word je meteen gegrepen door het indrukwekkende plafond van bijna 4 meter hoog – een echte eyecatcher!

Daarnaast is de woning goed onderhouden en helemaal klaar voor de volgende bewoners. Geniet van het comfort van vloerverwarming, een energiezuinig karakter én een nieuwe badkamer waar je zó in wilt stappen.

Ook buiten woon je top: de wijk is ruim opgezet met meerdere speelgelegenheden en aan het einde van de straat ligt recreatieplas De Rietplas – perfect voor een ommetje, een picknick of gewoon even uitwaaien, in elk seizoen. Kortom: een heerlijke plek om thuis te komen!

Kelder:
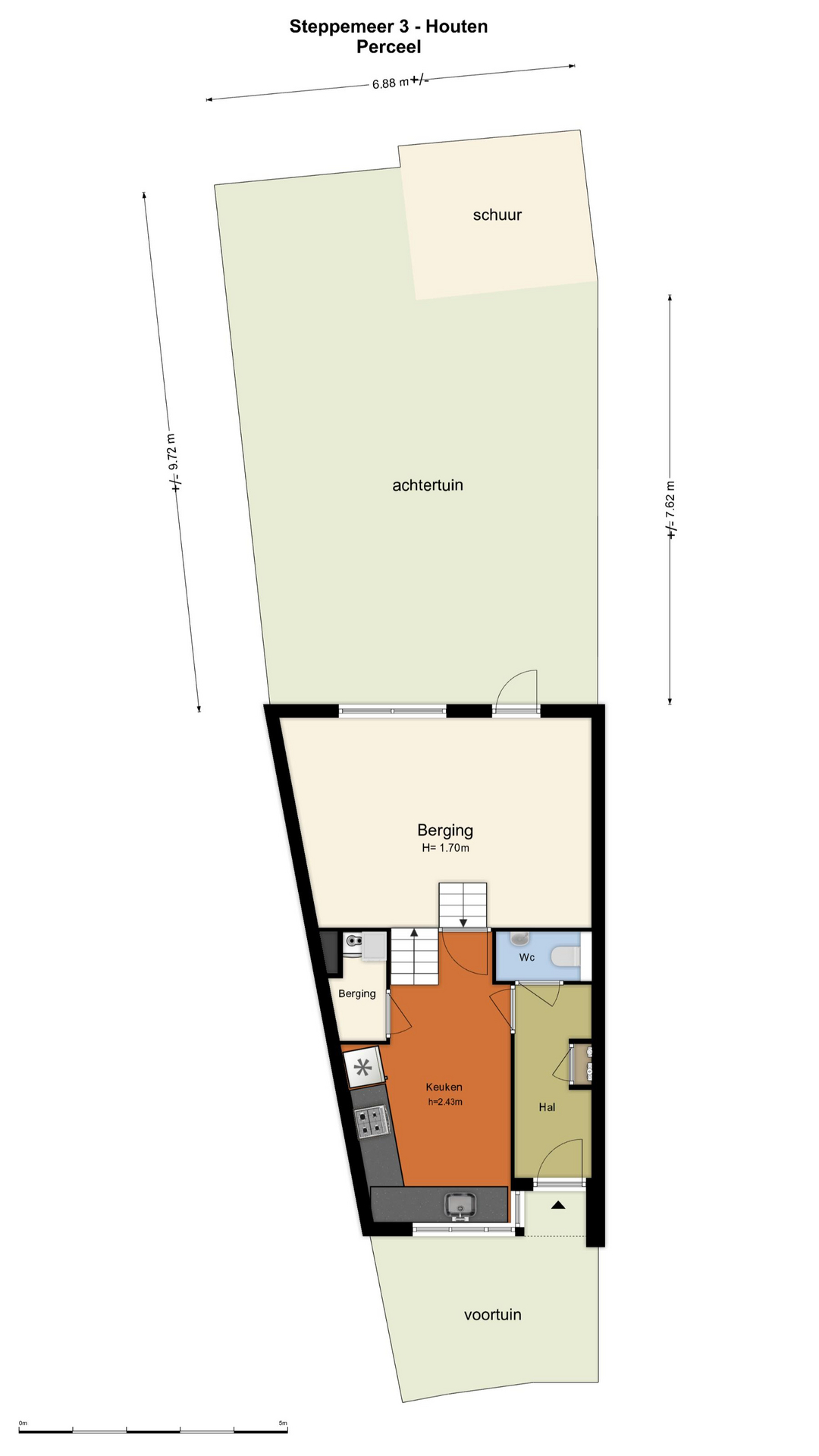
Verrassend grote droge grote opbergruimte (circa 20 m2) met een stahoogte van 1.70m.

Begane Grond
entree, hal, moderne toiletruimte met zwevend toilet en fontein, luxe keuken (2019) aan de voorzijde met veel werkruimte en voorzien van alle inbouwapparatuur, zoals o.a. een inductiekookplaat, koel-/vriescombinatie, vaatwasser en quooker. De keuken is voorzien van een handige berging welke te gebruiken is als voorraadkast. Vanuit de keuken is de grote bergruimte onder het eetgedeelte te bereiken.

Eetverdieping:
via een trap vanuit de keuken bereik je de eetverdieping, deze ruimte kenmerkt zich door het vele licht en het hoge plafond. Via een schuifpuit bereik je het heerlijke terras.

Woonverdieping:
via een trap bereik je het zitgedeelte, een fijne plek om te relaxen of in alle rust een film te kijken, hal en trapopgang naar de slaapverdieping.

Slaapverdieping:
overloop, 3 slaapkamers, moderne in 2024 gerenoveerde geheel betegelde badkamer v.v. inloopdouche, wastafelmeubel met dubbele spoelbak en tweede toilet.

Buiten:
Wat een tuin! Hier geniet je écht van buitenleven. De achtertuin is speels aangelegd op verschillende niveaus, vrij gelegen en heerlijk zonnig – een plek waar je na een drukke dag meteen tot rust komt.
Direct aan de woning vind je een verhoogd terras met vlonderplanken: dé perfecte plek voor je loungeset of een grote tuintafel.
Zie je het al voor je? Zwoele zomeravonden, de BBQ aan, gezellig eten, borrelen en ontspannen met vrienden of familie terwijl de zon langzaam ondergaat.

Het lager gelegen deel van de tuin is netjes betegeld en aangevuld met een strookje gras, aangelegd in de zomer van 2020. Ideaal voor spelende kinderen, een kleedje in de zon of gewoon lekker groen om je heen.

Daarnaast is er een praktische stenen berging met volop ruimte voor het stallen van fietsen en het opbergen van tuinspullen. En extra fijn: je beschikt over een achterom, wel zo handig!

Kortom: een heerlijke, zonnige en onderhoudsvriendelijke tuin met karakter, ruimte én sfeer — precies de plek waar je elk seizoen van wilt genieten.

Afmetingen:
Voor de exacte afmetingen van de verschillende ruimtes verwijzen wij u graag door naar de plattegronden.

Bijzonderheden
Woonoppervlak: circa 119 m².
Verwarming en warm water d.m.v. een c.v.-combiketel.
De gehele woning is v.v. strak afgewerkte wanden. De begane grond, eetverdieping en woonverdieping zijn v.v. visgraat vloeren in combinatie met vloerverwarming.
De woning is v.v. dubbele beglazing, vloerisolatie, dakisolatie en spouwisolatie.
Elektra: ruim voldoende groepen met aardlekschakelaar(s).
Energielabel: A

Aanvaarding in overleg.

Kijk ook op www.funda.nl bij de digitale 2-D en 3-D plattegrond en maak gebruik van de mogelijkheid om zelf je toekomstige huis in te richten met de Floorplanner.

VRIJBLIJVENDE INFORMATIE

Kenmerken

  • Type objectWoonhuis
  • Type woningTussenwoning
  • Perceeloppervlakte149 m2
  • KwaliteitVerzorgd
  • Woonoppervlakte119 m2
  • Bouwjaar2000
  • AanvaardingIn overleg
  • LiggingenAan rustige weg, In woonwijk
  • StatusVerkocht
  • Soort bouwBestaande bouw
  • Onderhoud binnenGoed
  • Onderhoud buitenGoed
  • Aantal kamers6 kamers
  • Aantal slaapkamers3 slaapkamers
  • Aantal badkamers1 badkamer
  • BadkamervoorzieningenToilet, Douche, Wastafelmeubel
  • EnergielabelA
  • VerwarmingCV_KETEL
  • Warm waterCV_KETEL
  • C.v.-ketel typeRemeha
  • C.v.-ketel bouwjaar2012
  • EigendomEigendom
  • HoofdtuinAchtertuin
  • Oppervlakte hoofdtuin80 m2
  • AchteromJa
  • Schuur / bergingVrijstaand steen
  • Aantal schuren / bergingen1
  • Oppervlakte gebouwgebonden0 m2
  • Externe bergruimte8 m2
  • Inhoud462 m3
  • Gebruiksoppervlakte wonen0 m2
  • Perceeloppervlakte149 m2

Beeld & media

Plattegronden

Downloads