• 109 m2
  • 90 m2
  • 4 kamers

€ 500.000,- k.k.

In de geliefde wijk Ondiep, aan een brede straat gelegen verrassend ruime charmante tussenwoning met volop mogelijkheden. Met een vrij gelegen achtertuin op het zuiden en diverse uitbreidingsopties...
Contact

Omschrijving

In de geliefde wijk Ondiep, aan een brede straat gelegen verrassend ruime charmante tussenwoning met volop mogelijkheden.

Met een vrij gelegen achtertuin op het zuiden en diverse uitbreidingsopties biedt dit huis de perfecte basis om geheel naar eigen smaak in te delen en af te werken.
Een unieke kans voor wie op zoek is naar karakter, ruimte en de vrijheid om een droomwoning te realiseren.

Indeling:
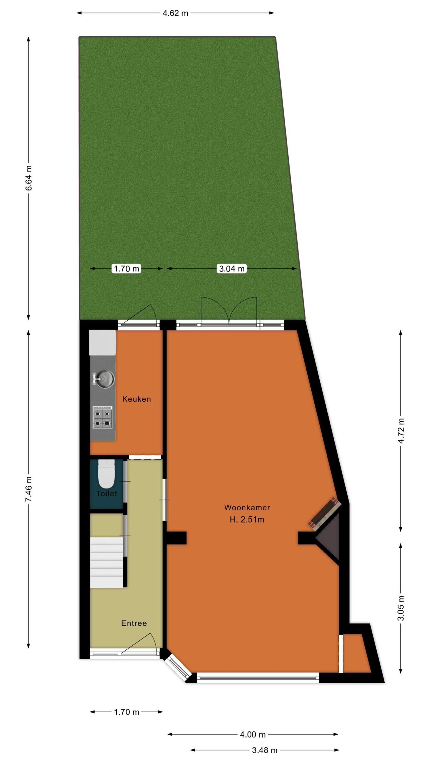
Begane grond:
Entree, hal, toilet met fontein, meterkast, trapopgang, verrassend ruime woon-/eetkamer, dichte keuken met net eenvoudig keukenblok, deur naar de tuin.

1e Verdieping:
Overloop, twee slaapkamers waarvan een met openslaande deuren naar balkon, badkamer (circa 5 jaar oud) met douche, wastafel en 2e toilet, keuken met net eenvoudig keukenblok.

2e Verdieping:
via vaste trap te bereiken,
zolderkamer, half open keuken met net recht keukenblok, c.v.-ruimte, omvormer zonnepanelen, bergruimte.

Buiten:
De tuin is gelegen op het zuidwesten en v.v. een achterom.

Afmetingen (circa):
Voor de exacte afmetingen verwijzen wij u graag naar de bijgevoegde plattegronden.

Bijzonderheden:
• Verwarming en warm water middels c.v.-combi ketel (Remeha, bouwjaar 2024)
• De woning is grotendeels v.v. kunststof kozijnen met isolerende beglazing.
• De woning is bouwkundig gekeurd. De laatste jaren is de woning kamergewijs verhuurd geweest.
• Energielabel C.
• Aanvaarding in overleg, kan snel.

De koopovereenkomst zal worden voorzien van de ‘as is, where is’ clausule, het niet-zelfbewoningsartikel en het asbestartikel.

KIJK VAST OP FUNDA NAAR DE 2-D EN 3-D DIGITALE PLATTEGRONDEN EN RICHT HET HUIS VAST IN MET JE EIGEN SPULLEN.

VRIJBLIJVENDE INFORMATIE

Kenmerken

  • Type objectWoonhuis
  • Type woningTussenwoning
  • Perceeloppervlakte90 m2
  • KwaliteitNormaal
  • Woonoppervlakte109 m2
  • Bouwjaar1946
  • AanvaardingIn overleg
  • LiggingenAan rustige weg, In woonwijk
  • StatusVerkocht
  • Soort bouwBestaande bouw
  • Soort dakSamengesteld dak
  • Onderhoud binnenGoed
  • Onderhoud buitenGoed
  • Aantal kamers4 kamers
  • Aantal slaapkamers3 slaapkamers
  • Aantal badkamers1 badkamer
  • BadkamervoorzieningenToilet, Douche, Wastafel, Wasmachineaansluiting
  • EnergielabelC
  • VerwarmingCV_KETEL
  • Warm waterCV_KETEL
  • C.v.-ketel typeRemeha
  • C.v.-ketel bouwjaar2024
  • EigendomEigendom
  • HoofdtuinAchtertuin
  • Oppervlakte hoofdtuin31 m2
  • AchteromJa
  • Oppervlakte gebouwgebonden6 m2
  • Externe bergruimte0 m2
  • Inhoud389 m3
  • Gebruiksoppervlakte wonen0 m2
  • Perceeloppervlakte90 m2

Beeld & media

Plattegronden