• 143 m2
  • 197 m2
  • 6 kamers

€ 600.000,- k.k.

Wonen in alle rust, met ruimte, sfeer en comfort op een plek waar het landelijke leven nog écht voelbaar is. In het charmante en rustige Cothen, omgeven door groen en ruimte, ligt deze bijzonder...
Contact

Omschrijving

Wonen in alle rust, met ruimte, sfeer en comfort op een plek waar het landelijke leven nog écht voelbaar is.

In het charmante en rustige Cothen, omgeven door groen en ruimte, ligt deze bijzonder sfeervolle twee-onder-een-kapwoning met aangebouwde garage en parkeerplaats op eigen terrein. Een woning die direct opvalt door de perfecte combinatie van comfort, uitstraling en leefruimte.

De begane grond is aan de achterzijde uitgebouwd, waardoor een royale en lichte leefomgeving is ontstaan. Hier komen wonen, koken en ontspannen op een natuurlijke manier samen. De warme houtkachel vormt het hart van de woonkamer en zorgt voor een intieme en gezellige sfeer, terwijl de grote raampartijen zorgen voor een prachtige lichtinval en een fijn contact met buiten.

De moderne keuken sluit naadloos aan op de eetkamer en is een heerlijke plek voor lange avonden tafelen met familie en vrienden. Dankzij de aanwezige airconditioning geniet je hier bovendien het hele jaar door van een aangenaam binnenklimaat.
Op de verdiepingen beschikt de woning over meerdere volwaardige (slaap)kamers en een verzorgde badkamer, wat deze woning uitermate geschikt maakt voor gezinnen en thuiswerkers.
De zonnige achtertuin biedt volop privacy en vormt een verlengstuk van de woonruimte op mooie dagen. Achter de woning bevindt zich een speeltuintje, ideaal voor jonge gezinnen. Daarnaast is er ruime parkeergelegenheid op eigen terrein én in de directe omgeving.

Een instapklare, verrassend ruime woning op een rustige en groene locatie, waar comfort en sfeer hand in hand gaan.

Begane grond:
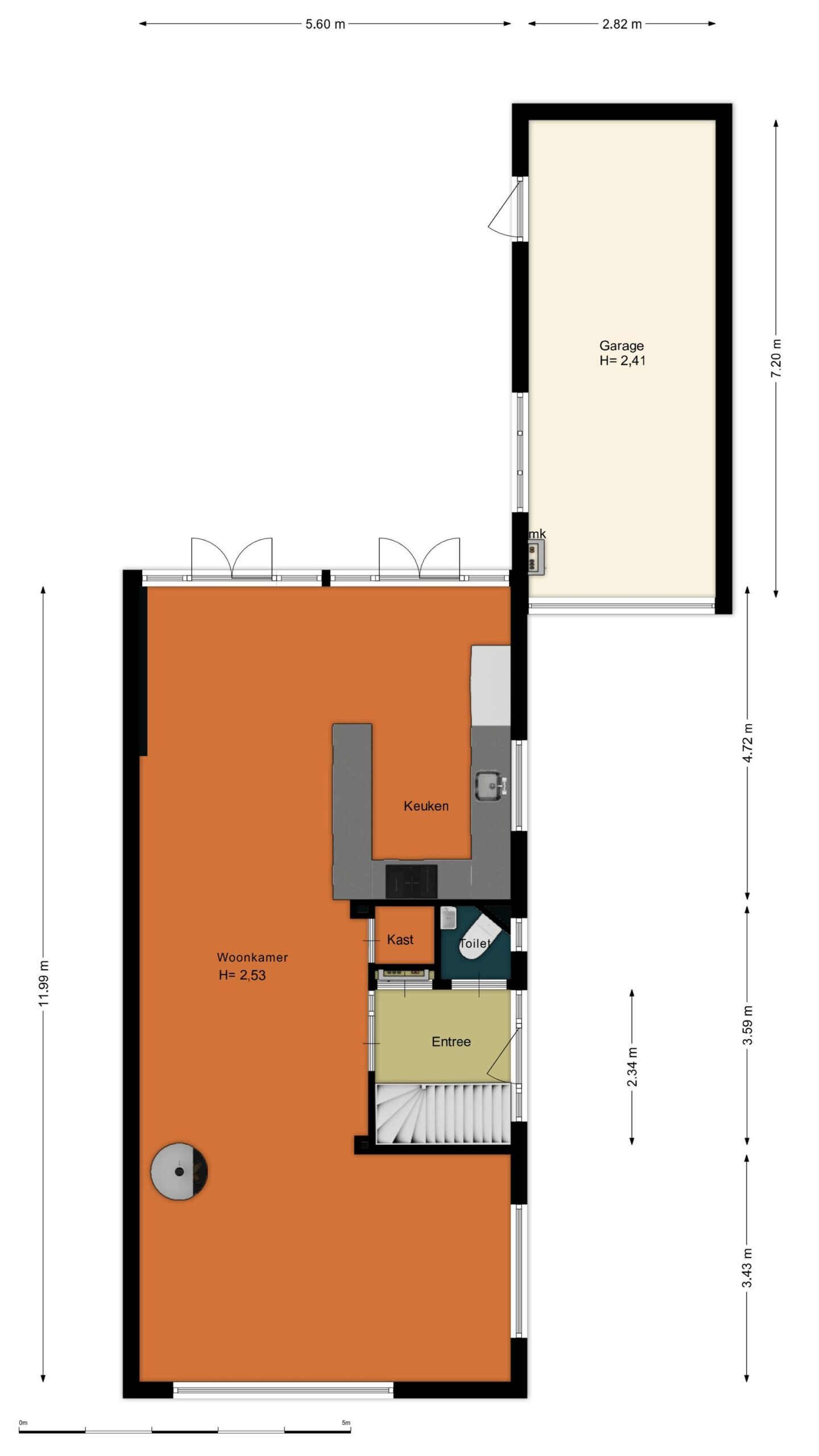
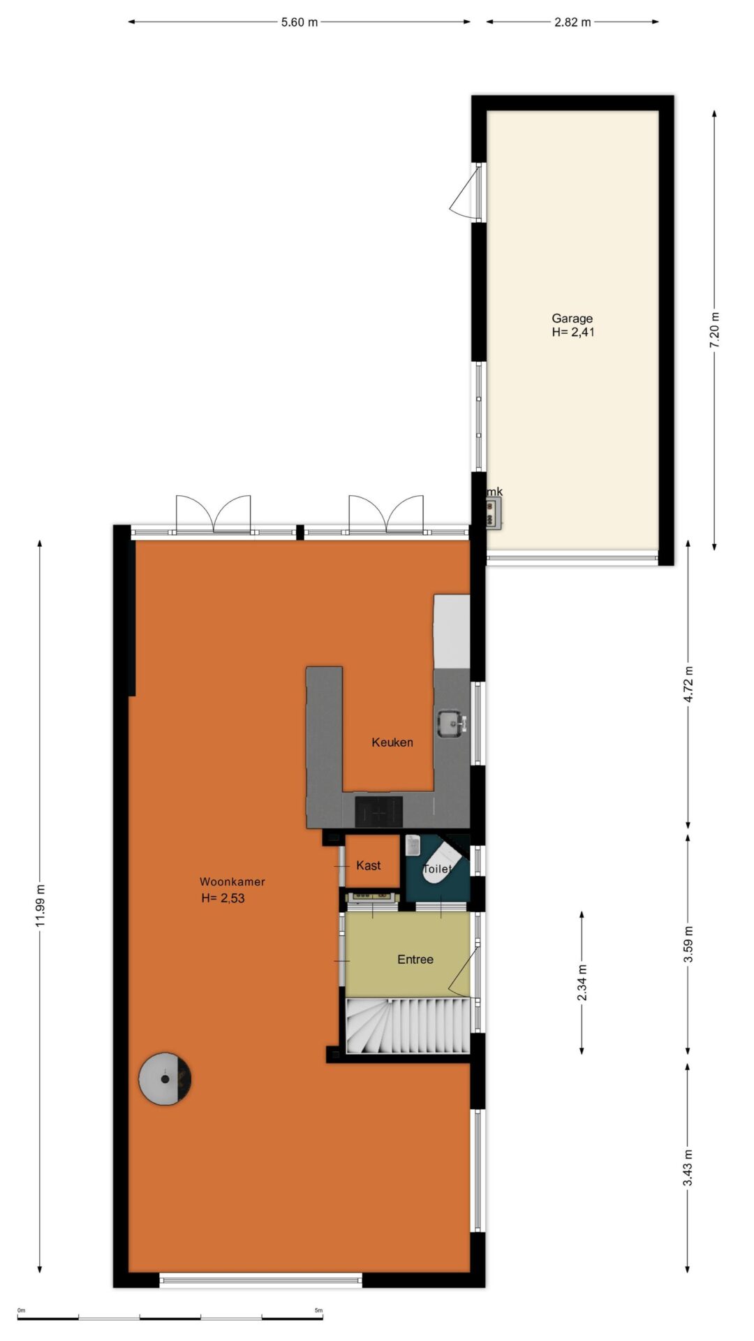
entree, hal, meterkast, modern toilet met fontein, verrassend ruime aan de achterzijde uitgebouwde L-vormige woon-/eetkamer. Aan de achterzijde bevindt zich de moderne U-vormige keuken met veel kastruimte, bargedeelte, vaatwasser, Quooker, kookplaat met geintegreerde afzuigkap, koelkast met vriesvak en oven. De gehele begane grondvloer is v.v. een zwarte tegelvloer met vloerverwarming. Via dubbele openslaande deuren is de tuin te bereiken.

1e verdieping:
overloop, drie slaapkamers waarvan twee met deur naar balkon, separate ruimte met toilet, wastafel en aan-/afvoer wasmachine, badkamer met hoekligbad, douche, handdoekenradiator en wastafelmeubel.

2e verdieping:
overloop met bergruimte, c.v.-ruimte, twee slaapkamers beiden met dakkapel.

Buiten:
De zonnige verzorgde achtertuin is gelegen op het zuidwesten en heeft een achterom welke uitkomt op een speeltuintje. Ook is de verrassend ruime garage met kanteldeur te bereiken vanuit de tuin.

Afmetingen:
Voor de exacte afmetingen van de diverse ruimtes verwijzen we je graag door naar bijgevoegde plattegronden.

Bijzonderheden:

– Woonoppervlak: circa 143 m².
– Perceeloppervlak: ca. 197 m².
– Het gehele huis is v.v. dubbele beglazing.
– Stenen garage v.v. elektra met kanteldeur en loopdeur.
– Elektra: voldoende groepen met aardlekschakelaar.
– Verwarming en warm water d.m.v. een cv-combiketel (Nefit), bouwjaar 2004.
– De woning heeft een energielabel C.
– Aanvaarding in overleg.

VRIJBLIJVENDE INFORMATIE

Kenmerken

  • Type objectWoonhuis
  • Type woningTwee onder één kapwoning
  • Perceeloppervlakte197 m2
  • KwaliteitVerzorgd
  • Woonoppervlakte143 m2
  • Bouwjaar1977
  • AanvaardingIn overleg
  • LiggingenAan rustige weg, In woonwijk, Open ligging
  • StatusVerkocht onder voorbehoud
  • Soort bouwBestaande bouw
  • Onderhoud binnenGoed
  • Onderhoud buitenGoed
  • Aantal kamers6 kamers
  • Aantal slaapkamers5 slaapkamers
  • Aantal badkamers1 badkamer
  • BadkamervoorzieningenLigbad, Douche, Wastafelmeubel
  • EnergielabelC
  • VerwarmingCV_KETEL, HOUTKACHEL
  • Warm waterCV_KETEL
  • C.v.-ketel typeNefit
  • C.v.-ketel bouwjaar2004
  • EigendomEigendom
  • HoofdtuinAchtertuin
  • Oppervlakte hoofdtuin40 m2
  • AchteromJa
  • Oppervlakte gebouwgebonden7 m2
  • Externe bergruimte0 m2
  • Inhoud537 m3
  • Gebruiksoppervlakte wonen0 m2
  • Perceeloppervlakte197 m2

Beeld & media

Plattegronden

Downloads